Rebecca Delaney
Realtor, Home Stager, eDesigner, Vacation Rental Designer, Color Expert

2117 Yale Avenue, Saint Louis, MO 63143

$450,000
  • 2117 Yale Avenue, Saint Louis, MO 63143 Main Photo

5 Total Photos [Click to View All]

Active
LOT SIZE 0.174 acres MLS#25045287
STATUSActive PROPERTY TYPELand - Residential SUBDIVISIONVersatile Earth SCHOOLMaplewood-Richmond Heights

Property Description

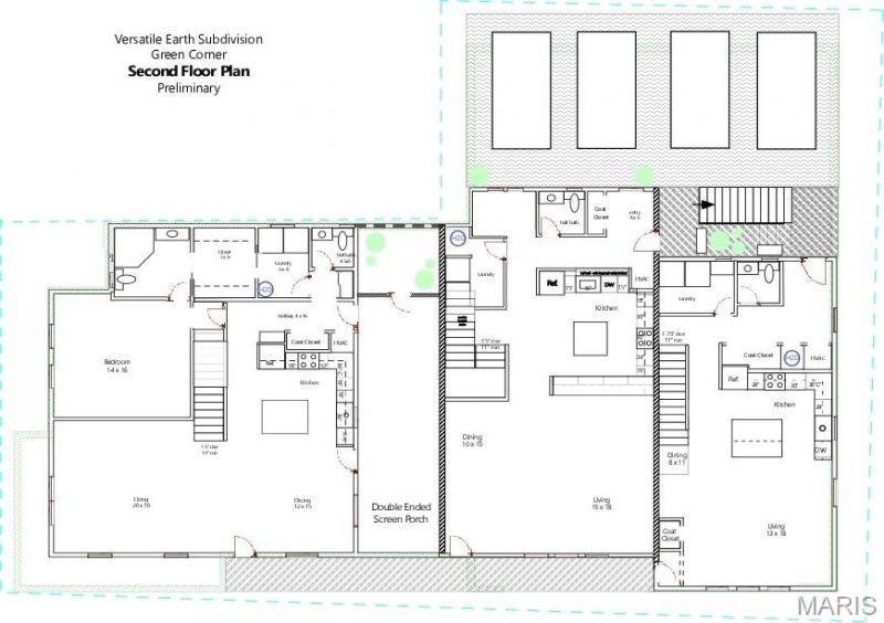
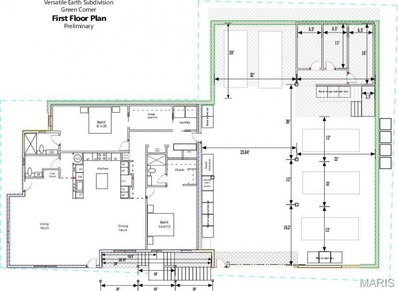
Final phase of the Versatile Earth Subdivision in Maplewood, MO - fully approved for four unique units designed for energy efficiency, functional layouts, and minimal long-term maintenance. The project includes: 2115 Yale Ave: 3BR/2.5BA, loft, rooftop deck, upper covered parking plus garage & storage. 2117 Yale Ave: 3BR/2.5BA, open layout, loft, rooftop deck, upper covered parking plus garage & storage. 2119 Yale Ave: 4BR/3.5BA, screened porch entry, upper balcony, two covered parking spaces. Lower Level Unit: versatile space approved for commercial or residential use, including cafe/retail option or 2BR/2BA residential conversion, with three covered parking spaces.Design emphasizes natural light, sound control, functional space planning, and low exterior maintenance. All units feature individual outdoor living areas, front/back access, and shared garage for trash collection and additional storage. Prior phases of this subdivision have demonstrated strong demand and long-term tenancy, including a duplex built in 2019 with zero building maintenance issues and stable occupancy. Excavation costs can be reduced with access to free soil disposal at a nearby commercial property.This is a shovel-ready opportunity for a developer or investor to partner and complete the subdivision's largest and final phase. Zoned PUD. MSD and Design & Review approved.

2117 Yale Avenue | MLS# 25045287

This land located at 2117 Yale Avenue, Saint Louis, MO 63143 is currently listed for sale with an asking price of $450,000. The property has approximately 0.17 Acres. Yale Avenue is located within the Maplewood-Richmond Heights school district. Search Saint Louis real estate on www.rebeccadelaneystlouis.com today.

Property Features

Property Type: Land - Residential
Lot Size: 0.17 Acres
Taxes: $1,292

Feature Descriptions

Days on Site: 252
Lot: Corner Lot
Lot Dimensions: irregular
Parcel#: 21J-64-0572

Local Schools

High School: Maplewood-Richmond Hgts. High
Middle School: Mrh Middle
Elementary School: Mrh Elementary
School District: Maplewood-Richmond Heights

Listed By / Shown By

Listed By

Agency Name: RE/MAX Results

Shown By

Agent Name: Rebecca Delaney
Agent Phone: (314) 277-4035
Agency Title: RedKey Realty Leaders

IDX logo

Estimate Your Payment

Estimated Payment

$ 2,690.58 per month $2,451.66 Principal & Interest $107.67 Property Tax $131.25 Homeowner's Insurance

Change Payment Information

%
years/fixed
yearly
yearly (est.)
(Payments are an estimate and may vary by lender)

David Ames, Sales Manager, NMLS #738479

Login to My Homefinder

Pixel